吸收塔有限元计算分析应用
2016-02-03 10:09:46
作者:李天才 万荣超
概述:脱硫吸收塔做为脱硫系统的核心部件,其结构尺寸比较大,而且所受载荷多样且复杂,一般的手工力学计算很难准确的算出每个部位的应力及应变,本文主要通 过有限元分析软件ANSYS对吸收塔结构进行整体的力学分析,从而能够准确计算出不同载荷工况下吸收塔每个部位的应力应变值。
一、概况
某发电厂工程规划建设容量为4×660MW燃煤超超临界机组,同时建设烟气脱硫装置脱硫采用石灰石—石膏湿法烟气脱硫工艺(简称FGD)。FGD采用一炉一塔脱硫装置,100%烟气脱硫。以 下为某项目脱硫吸收塔总图:

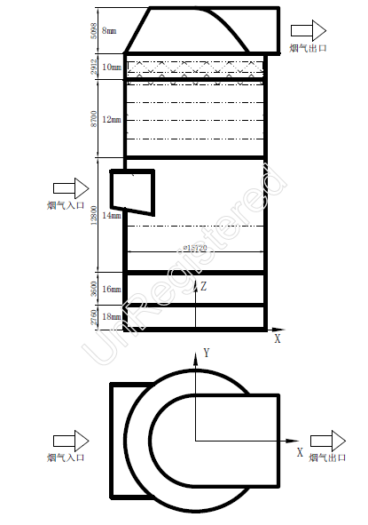
图一:吸收塔简图
FGD系统采用的是逆流喷淋塔结构:原烟气通过矩形入口进入塔内,在向上流动的过程中与向下喷淋的石灰石浆液接触并反应,进而烟气中的大部分SO2被“洗涤”出来。被“洗涤 ”后的烟气携带了大量的液滴,通过除雾器后,大部分的液滴被截留下来回流到吸收塔内。然后“洁净烟气”通过吸收塔出口流通到净烟道,最后通过烟囱排放到大气中。
脱硫吸收塔采用碳钢加防腐的设计,部分腐蚀强烈部位采用全合金或者贴衬的工艺。本次计算主要针对吸收塔的钢体部分,通过采用有限元计算软件(ANSYS)对整个吸收塔钢体部分进行 不同载荷下的应力应变分析,从而优化吸收塔的设计。
二、 设计数据:
2.1、吸收塔总体设计尺寸:
1)、吸收塔直径D:?15720mm,总高H:35900mm
入口烟道高H入口:4018mm,宽W入口:12580mm,突出塔体长度L入口:1502mm
出口烟道高H出口:5090mm,宽W出口:10180mm,突出塔体长度L出口:1410mm
2)地脚螺栓: M36*1220 36套
3)吸收塔壳体设计厚度:
序号 | 层高范围(mm) | 层高(mm) | 板厚(mm) | 材质 | 备注 |
1 | 0-30 | 30 | 30 | Q345B | 基础环 |
2 | 30-2790 | 2760 | 18 | Q345B | 垂直壳体 |
3 | 2790-6390 | 3600 | 16 | Q345B | 垂直壳体 |
4 | 6390-19190 | 12800 | 14 | Q345B | 垂直壳体 |
5 | 19190-27890 | 8700 | 12 | Q345B | 垂直壳体 |
6 | 27890-30802 | 2912 | 10 | Q345B | 垂直壳体 |
7 | 30802-35900 | 5098 | 8 | Q345B | 锥顶 |
8 | 吸收塔入口 | 5.5 | Alloy 59 | 入口烟道 | |
9 | 吸收塔出口 | 8 | Q345B | 出口烟道 | |
注:吸收塔的设计厚度包含板材的腐蚀余量2.0mm以及板材的负偏差0.5mm,此次模型中的验算尺寸为:设计尺寸-2.5mm
4)加强筋、加强环以及入口立柱:
序号 | 高度/位置(mm) | 类型 | 尺寸(mm) | 材质 |
1 | 4050 | 加强环 | 44厚×450宽 | Q345B |
2 | 7350 | 加强环 | 40厚×400宽 | Q345B |
3 | 11370 | 加强环 | 40厚×440宽 | Q345B |
4 | 12800 | 加强环 | 44厚×470宽 | Q345B |
5 | 17720 | 加强环 | 44厚×470宽 | Q345B |
6 | 18720 | 加强环 | 40厚×440宽 | Q345B |
7 | 28120 | 加强环 | 35厚×350宽 | Q345B |
8 | 30802 | 加强环 | 40厚×400宽 | Q345B |
9 | 入口烟道 | 加强筋 | HN400×200 | Q345B |
10 | HN350×175 | Q345B | ||
11 | HN300×150 | Q345B | ||
12 | 入口烟道 | 立柱 | HW458×417 | Q345B |
13 | HW428×407 | Q345B | ||
14 | 出口烟道&锥顶 | 加强筋 | HN400×200 | Q345B |
15 | HN300×150 | Q345B | ||
16 | HN200×100 | Q345B |
5) 内部支撑梁:
序号 | 名称 | 规格(mm) | 长度(mm) | 允许挠度(mm) | 材质 | |
